Проект B-70 ( 2 этажа)
Площадь:
Санузел:
Спальня:
163 м²
2
2
* Проект может быть адаптирован и изменен под вас. Можно внести изменения по площади, а также внешнему облику.
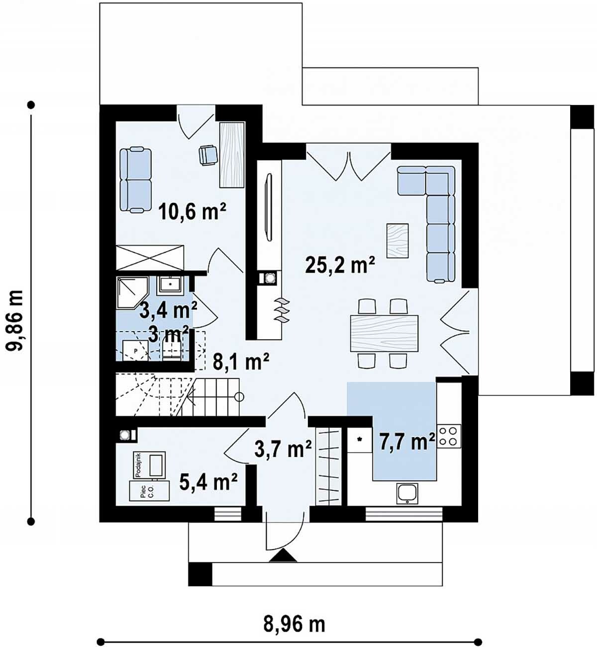
Планировка:
1 эт.
Мансарда

Для данного проекта разработана документация «Описание внешнего облика».

Если Вам понравился этот проект, Вы можете заказать на него полный комплект проектной документации,

а также внести необходимые изменения в готовые решения.

Позвоните нам и архитектор проконсультирует Вас совершенно бесплатно!

Основной этап создания проектной документации. Текстовые и графические материалы.
₽800
Состоит из текстовой и графической части, которые включают сведения о ЗУ, архитектурные изображения, разрезы и тд.
₽800
Архитектурные решения. Документация стадии «П»
Конструктивные решения. Документация стадии "КР"
ЭТАПЫ СОЗДАНИЯ ПРОЕКТА
Мы знакомимся с вами и узнаем ваши пожелания.
Вы подробно узнаете о наших возможностях и как мы можем реализовать вашу задумку.
После встречи, мы приступаем к разработке технического задания для вашего дома.
1
ЗНАКОМСТВО И ТЕХНИЧЕСКОЕ ЗАДАНИЕ
Мы документально фиксируем все сроки и гарантии, фиксируем все наши обязательства в договоре, после заключение приступаем к разработке проекта.
Создание проекта состоит из нескольких этапов, в каждом из которых будет важно ваше мнение.
2
ЗАКЛЮЧЕНИЕ ДОГОВОРА И СОЗДАНИЕ ПРОЕКТА
После того, как ваш проект будет готов, мы начинаем подготовку документов для получения разрешения на строительство. Для вас это будет абсолютно бесплатно. Широкий спектр услуг нашей организации позволяет получить положительный ответ от департамента архитектуры.
3
СОГЛАСОВАНИЕ ПРОЕКТА И ПОЛУЧЕНИЕ РАЗРЕШЕНИЯ
ОСТАЛИСЬ ВОПРОСЫ? СВЯЖИТЕСЬ С НАМИ!
Отправьте нам техническое задание
для расчета стоимости работ.
Если у Вас ещё нет технического задания - оставьте свои контакты - мы поможем Вам его составить, или просто проконсультируем.
Made on
Tilda